Perfiles de PVC de extrusión de plástico para ventana con precio económico
Nuestros perfiles de uPVC Lumei tienen tipos de series, como marcos de 60 mm/65 mm/70 mm, 80 mm y 88 mm, y otras series personalizadas de correderas/marcos/batientes/inclinables. Las series de puertas y ventanas terminadas son ventanas y puertas correderas de la serie 60, ventanas abatibles y basculantes de la serie 60, puertas abatibles de la serie 60, ventanas y puertas correderas de la serie 80, puertas abatibles de la serie 80 y puertas correderas de la serie 88, algunas series nuevas están en desarrollo , como la serie 62, la serie 75, la serie 90, etc.
Perfiles de PVC de extrusión de plástico para ventana con precio económico
Perfil UPVC La composición química principal es PVC, por lo que también se conoce como perfil de PVC. El perfil de metal plástico tiene las siguientes características: limpio, duradero, impermeable, a prueba de humedad, ignífugo, no tóxico, no contaminante, resistente a los insectos, a prueba de ácidos, resistente a los álcalis, fuerza excesiva, larga vida útil.
Nuestros perfiles Lumei uPVC tienen tipos de series, como marcos de 60 mm/65 mm/70 mm, 80 mm y 88 mm, y diferentes series personalizadas de correderas/marcos/batientes/inclinables. Ventanas abatibles de secuencia y tilf, puertas abatibles de secuencia 60, ventanas y puertas corredizas de la colección ochenta, puertas batientes de la colección ochenta y puertas corredizas de secuencia 88, algunas colecciones nuevas más grandes están en desarrollo, como la serie 62, la serie setenta y cinco, la serie noventa, etc. .
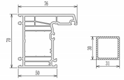
Perfiles uPVC abatibles de 70 mm con alta calidad:
Perfiles laminados de upvc de 70 mm con alta calidad ventajas de la siguiente manera:
(1) Buena propiedad de sellado de agua para perfil de plástico de pvc extruido
Con placa a prueba de lluvia, y ranuras y postesdrenaje de agua, entradas y domésticas ventanas pueden aislar completamente la lluvia del exterior.
(2) Resistencia al envejecimiento sobre el perfil de plástico de pvc extruido
Adoptar mejorador importado, y con absorbente a prueba de radiación ultravioleta, puertas y puertas de plástico domésticas ventanas proceder para ser igual coloración y excepto en desarrollo antiguo abajo sol abrasador, lluvia intensa, sequedad y humedad desde menos 30 rango a 70 grados.
(3)Propiedad a prueba de fuego sobre el perfil de plástico de pvc extruido
El plástico ahora ya no se enciende solo, ya no información combustión, y puede autoextinguirse.
(4) Hermeticidad al aire
Hay tiras selladas en los huecos de las juntas, que pueden almacenar energía.
(5)Fácil Mantenimiento
Los perfiles de PVC ya no se verán influenciados por polvo, cemento, aglutinantes, etc. Se pueden limpiar mediante cualquier agente de limpieza .
Rendimiento superior del perfil de Lumei:
1. Mejora de la salud;
2. Actualización de la conservación de energía;
3. Actualización de la vida útil;
4. Mejora de la fuerza;
5. Actualización de colores, como color blanco puro. Color blanco leche
6. Perfil de pvc de material plástico con impermeable
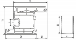
Certificación CE de la fábrica de China 70 mm color madera Perfiles UPVC con laminado:
Perfiles de uPVC de 70 mm de Lumei Aplique una fórmula respetuoso con el medio ambiente y resistente a la intemperie y fantásticamente absorbentes resistentes a la radiación ultravioleta para garantizar la verdadera suave y calidez firmeza en oposición a opuesto entorno y el anti-desvanecimiento y no deformación El uso de excepcional resina de PVC mejora la resistencia a la corrosión y a los ácidos y álcalis de ventanas y puertas que|| ||perceptiblemente extiende su portador vida.
Sistema de Vidrio de Ventanas y Puertas UPVC Casement de 70mm
Tipo de vidrio |
Vidrio transparente, vidrio templado, vidrio esmerilado, vidrio laminado, vidrio de baja emisividad, Vidrio aislante, vidrio reflectante, vidrio coloreado, etc. |
Espesor |
4 mm, 5 mm, 6 mm, 8 mm, 5+9+5 mm, 4+8+4 mm, 5+12+5 mm, 6+12+6 mm, 5+9+5+9+5 mm, 6+12+6+12+6mm,etc. |
Gas para Vidrio Aislante |
Ar, Kr |
Color de cristal |
Por encargo |
No solo ofrecemos ventanas y puertas con perfiles de pvc, también ofrecemos máquinas para fabricar puertas y ventanas y accesorios de herrajes para puertas y ventanas:
Pago de productos, embalaje y carga
A. T/T & L/C
B. Dentro de los 15 días posteriores a la recepción 50% de depósito de T/T
C.Bolsas de plástico como requisitos de los clientes
D. Las muestras se pueden proporcionar libremente para probar la calidad de nuestros productos.
E.El contenedor habitual: 20GP ( puede cargar de 8 a 11 toneladas, el tiempo de entrega es de 7 a 10 días)
40 HQ (puede cargar 24-26 toneladas, el tiempo de entrega es de 10-15 días)
Editora: Kathy MA











